星美诺|专注·吧台|系统

FOCUS ON BAR SYSTEM

30000+店铺方案设计

30000+ STORE PLAN DESIGN

星美诺·吧台系统

BAR SYSTEM

星美诺餐饮设备有限公司

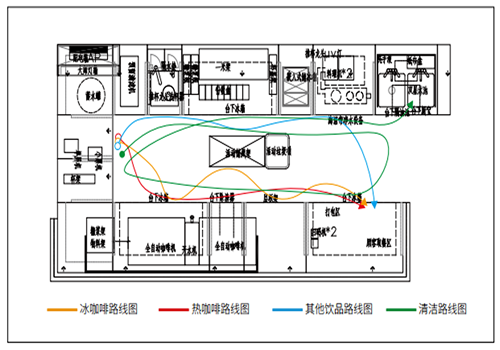
星美诺始于广东中山 是专注吧台系统、设计、研发、生产的专业品牌 秉持“低调务实,勇于创新”的企业精神,将优 质服务体验贯彻到工作价值观,用“一生做好一 件事”的态度持续为茶饮、咖啡、烘焙餐饮品牌 提供专业解决方案

关于我们
About

设计

Our Services

定制

Our Services

服务

Our Services

30000+

店铺设计经验

30000+

服务客户

365

热诚服务

10余年

行业沉淀

产品中心

Our Products

应用场景

Case

Blog ThumbPlus Icons

烘琣店

BAKERY

Blog ThumbPlus Icons

咖啡

COFFEE

Blog ThumbPlus Icons

椰子饮品

COCONUT DRINK

Blog ThumbPlus Icons

柠檬茶

LEMON TEA

Blog ThumbPlus Icons

新中式茶饮

NEW CHINESE TEA

Blog ThumbPlus Icons

茶饮

TEA DRINK

个性化定制

不同的材质,功能,尺寸,形状定制 制冷系统的经验,沉淀 坚持品控,严格选材